Luogo: CHIARAMONTE GULFI
Anno: 2012-2016
Tipologia: Turistico-ricettiva
Intervento: ristrutturazione, recupero, arredamento di interni
Articoli: SETUP (clicca per aprire)
L’antico Palazzo Majore, nel centro storico del borgo, in prossimità di Piazza Duomo, risale alla fine dell’Ottocento e, prima dell’intervento di recupero, versava in stato di grave degrado e abbandono. Il progetto ha mirato al consolidamento strutturale e alla conservazione dell’antica fabbrica, proseguendo sulla scia della tradizione costruttiva locale ma senza cadere in una mera riproposizione di falsi storici. Tradizione e design contemporaneo convivono senza rinnegarsi o cedere a gerarchiche categorie di valore.
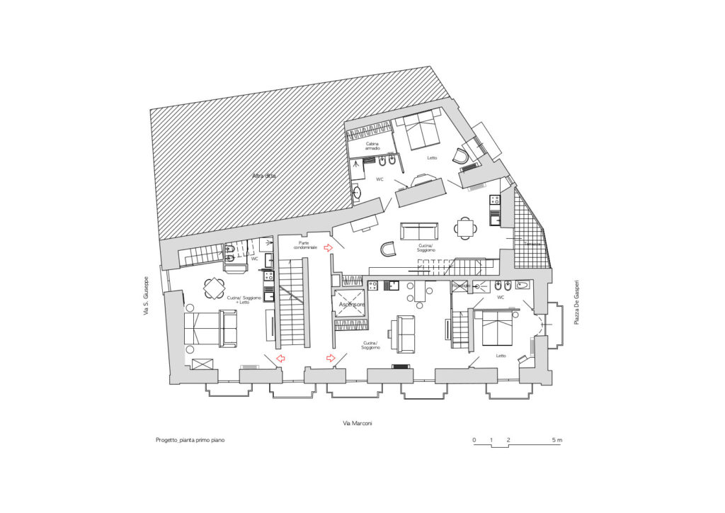
Gli esterni sono stati recuperati attraverso l’uso della pietra locale e di intonaci a calce, prestando massima cura ai dettagli; il recupero degli interni è stato effettuato considerando le necessità dei proprietari e gli standard abitativi contemporanei. Le tre unità sono state ricavate da ambienti duplex, collegati verticalmente da scale interne private e da un vano scala/ascensore comune.
Il vano scala rimane caratteristico per la conservazione della pietra pece, che con la sua tipica colorazione scura, dovuta alla presenza del bitume, crea un contrasto semplice e netto con le pareti chiare, arricchite da pannelli di rivestimento in cartongesso sagomato.
I corridoi di distribuzione presentano dei singolari “tappeti” di mattonelle in cemento colorato, incastonate nella pietra pece, che derivano dall’attenta selezione, pulitura e ricalibratura dei vecchi pavimenti del palazzo. Gli ambienti sono tutti illuminati dalla morbida luce LED incassata in strisce nei controsoffitti.
Giacché Chiaramonte Gulfi è rinomata e pluripremiata a livello internazionale per la produzione di olio extra-vergine di oliva, i pavimenti degli appartamenti sono in parquet di legno d’ulivo. La forte fiammatura e il colore biondo-mielato acquistano un valore pregnante nel design d’interni, al punto da diventare protagonisti assoluti del luogo e suggerendo un intorno sobrio e non competitivo. Il parquet è talvolta affiancato a piccoli “tappeti” in mattonelle di cemento colorato da recupero. La palette di colori da parete verte, di conseguenza, sui bianchi, con inserti in tortora, verde e glicine, al fine di evocare nell’ospite il calore dell’accoglienza che caratterizza l’ospitalità siciliana.















