Luogo: Ragusa
Anno: 2017-2018
Tipologia: residenziale
Intervento: ristrutturazione, arredamento di interni
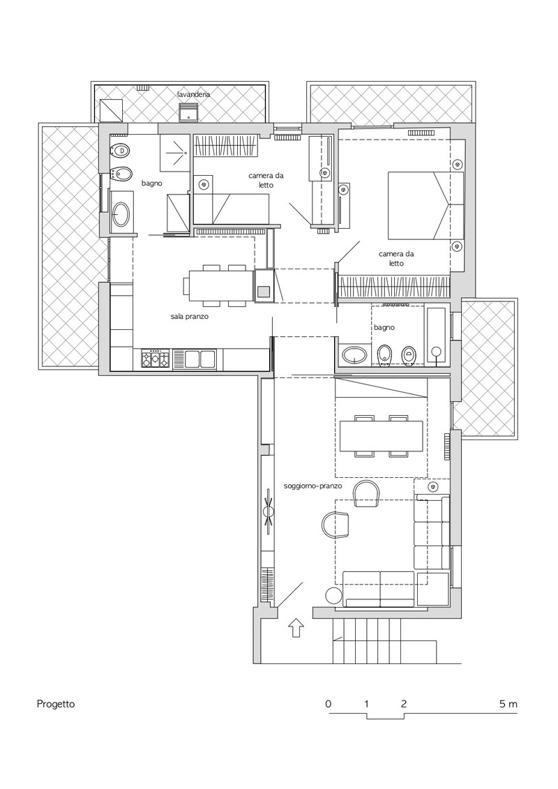
L’operazione di ristrutturazione ha riguardato l’appartamento di un condominio costruito negli anni ’80. L’esiguità delle superfici a disposizione ha reso indispensabile la rimodulazione degli ambienti domestici e la creazione di una nuova centralità in spazi originariamente di passaggio o distribuzione, al fine di destinare l’alloggio alle nuove esigenze di una giovane coppia. L’abbattimento di poche pareti ha infatti permesso una maggiore apertura delle aree living e, tramite l’arredamento a parete e l’uso di portali in legno, è stato possibile costruire un profondo cono prospettico che attraversa l’intera unità immobiliare e, contemporaneamente, ne raccoglie i vani rendendoli parte di un unicum.
La commistione tra arredo moderno e retrò di pregevole fattura conferisce un clima caldo e avvolgente, esaltato dalla palette di colori tenui e neutri, e dall’uso sapiente dell’illuminazione; la luce diventa dunque protagonista: suggerisce una funzione ad ogni ambiente e guida nei percorsi attraverso gli spazi, oltre ad evocare una suggestiva e confortevole atmosfera domestica.























